無生/ Nirvana
無生即有滅,不生亦不滅。
見 或者不見,
窺探沖孔板的空隙,
竄出咖啡的香氣,
充盈在半空中的金屬網中。
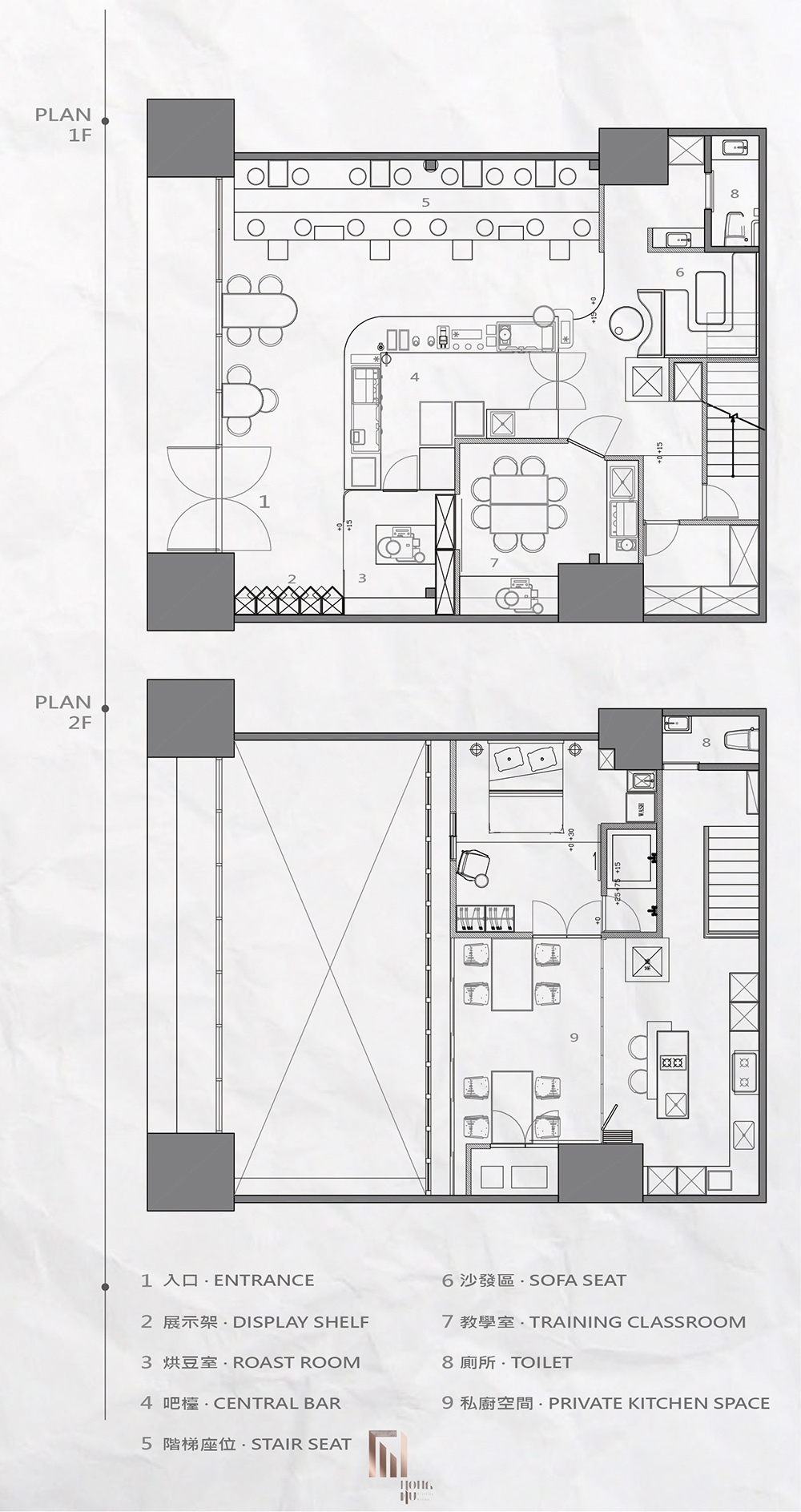
水平座位與垂直展架是空間的維度,
時間在空間中流轉,
猶如靜止。
拉花的圖樣在地上蔓延成水墨,
勾勒灰階的世界。
逝去的物象與光線交織形成畫作,
不增不減。
「去掉所有不必要的。削弱至本質,但不要剝離它的韻;保持乾淨純潔,但不要剝奪生命力。」
── 李歐納‧科仁
本案位於台南安平新興重劃區,距離台南市區僅十分鐘車程,而周邊有許多政府機關與觀光景點,通往亞果遊艇、漁光島皆極為方便。
亞果遊艇選擇落腳在此地,眼光放遠即將蓬勃興起的市場,在投資客及各大集團進駐後,未來的新安平將會形成一處新形態港灣娛樂生活圈。同時也因為亞果遊艇的與安平港的結合,讓台南晉升為國際港灣城市。
- 概念發想
空間靈感來自於咖啡拉花,奶泡沿著杯緣滑順地拉出線條創造圖案,如同水墨的筆觸延伸進入畫面,素淨的宣紙上逐漸浮現老樹、枯石、雲霧等漸逝的自然物象,透過水墨畫的元素轉化為空間的手法帶出侘寂的美感。
- 空間手法
天花不矯飾的混凝土質感,大塊、不做過多裁切加工的原石桌板,保留了材質的鮮明紋理,在陽光的照射下顯得柔和且具深度。
枯樹放置於角落一隅,背後以簡樸牆面襯托,利用留白,一樓的挑空透過枯樹的延展與二樓有了交流,打破空間的限制。
懸掛於天花板的漂浮藝品,似山似雲飄盪在上空,與地面的水墨、階梯上的枯樹形成一幅畫,畫面中所營造的或真實或虛幻的場景,為觀者留下更多的想像空間,留下更多可能。
階梯座位與造型展示牆分別於水平垂直向量延伸,視覺效果更具張力,兩者相互對應同時也讓空間融入現代風格的元素,將自然與人工的材質揉合形成一幅協調的畫作。材質、工法乃至思想,三者交會的故事性,最終產生的型態成為容納人群的載體。




對於自然物象本質的認可,內心共鳴而生的美,枯石、煙暮、光靄、禿枝、薄霧,空間中漸逝的物象為基調,自然與人工朦朧的邊界,有著侘寂的美感。在喧囂的市區中,期望能讓來客平靜心靈、沉澱自我,享受咖啡時光的片刻寧靜。