ABOUT
關於弄木
WORKS
作品欣賞
SERVICE
服務流程
NEWS
最新消息
CONTACT
連絡我們
CONSULT
諮詢表單
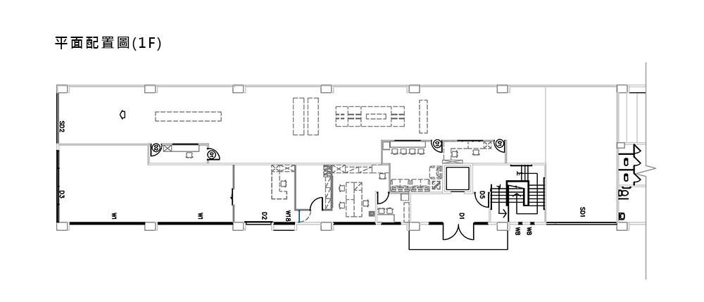
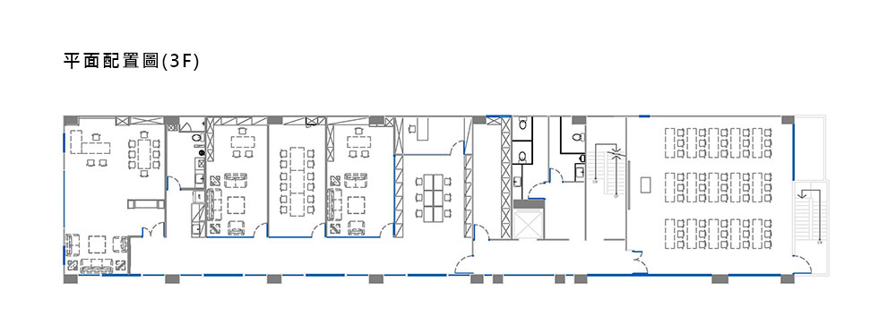
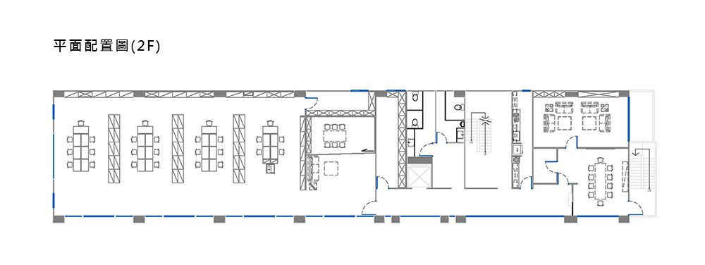
Chian Yue Gas Station 千越實業加油站企業總部
PHOTOS
BACK